2019ǯ¹½Â¤4¡ÊÆóµé·úÃۻγزʻÌäÂê¡Ë
2020ǯ05·î04Æü 2019ǯ¹½Â¤4¡ÊÆóµé·úÃۻγزʻÌäÂê¡Ë
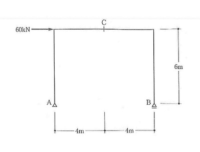
¿Þ¤Î¤è¤¦¤Ê³°ÎϤò¼õ¤±¤ëÀÅÄê¥é¡¼¥á¥ó¤Ë¤ª¤¤¤Æ¡¢»ÙÅÀA,B¤ËÀ¸¤¸¤ë±ôľȿÎÏ¡¢
¤ÎÃͤȡ¢CÅÀ¤ËÀ¸¤¸¤ë¤»¤óÃÇÎÏ
¤ÎÀäÂÐÃͤȤÎÁȹç¤ï¤»¤È¤·¤Æ¡¢Àµ¤·¤¤¤â¤Î¤Ï¡¢¼¡¤Î¤¦¤Á¤É¤ì¤«¡£¤¿¤À¤·¡¢±ôľȿÎϤÎÊý¸þ¤Ï¡¢¾å¸þ¤¤ò¡Ö+¡×¡¢²¼¸þ¤¤ò¡Ö¡Ý¡×¤È¤¹¤ë¡£
Àµ²ò¡Ê£²¡Ë
¡Ú£±¡ÛÈ¿ÎϤòµá¤á¤ë¡£
»ÙÅÀA¤ËRA¡Ê¾å¸þ¤¡Ë¡¢HA¡Êº¸¸þ¤¡Ë¡¢»ÙÅÀB¤ËRB¡Ê¾å¸þ¤¡Ë¤ò²¾Äꤷ¤Æ¡¢¤Ä¤ê¤¢¤¤ÊýÄø¼°¤è¤ê¡¢
¡Êüñ¡Ë¿åÊ¿Êý¸þ¤Î¤Ä¤ê¤¢¤¤
¦²±¦¸þ¤¤ÎÎϡᦲº¸¸þ¤¤ÎÎÏ
¡èHA¡á60kN
¡Êüò¡Ë±ôľÊý¸þ¤Î¤Ä¤ê¤¢¤¤
¦²¾å¸þ¤¤ÎÎϡᦲ²¼¸þ¤¤ÎÎÏ
¡èRA¡ÜRB¡á0
¡Êüó¡Ë¥â¡¼¥á¥ó¥È¤Î¤Ä¤ê¤¢¤¤
¦²±¦²ó¤ê¤Î¥â¡¼¥á¥ó¥È¡á¦²º¸²ó¤ê
»ÙÅÀB¤òÃæ¿´¤Ë¤·¤Æ¡¢
RA¡ß8¡Ü60¡ß6¡á0
¡èRA¡á-45kN
¡Êüò¡Ë¤è¤ê¡¢RB¡á¡Ü45 kN
¡Ú£²¡Û±þÎϤòµá¤á¤ë¡£
£ÃÅÀ¤ÇÀÚÃǤ·±¦Â¦¤ò¹Í¤¨¤ë¡£
¤³¤³¤ÇÀÚÃÇÌ̤ˤϡ¢£³¤Ä¤Î±þÎÏNC¡¢QC¡Ê²¼¸þ¤¡Ë¡¢MC¤òµÆþ¤¹¤ë¤³¤È¤Ç¤Ä¤ê¤¢¤¤¤¬¤È¤ì¤ë¡£
¤³¤³¤Ç¡¢±ôľÊý¸þ¤Î¤Ä¤ê¤¢¤¤¤ò¹Í¤¨¤ë¡£
¦²¾å¸þ¤¤ÎÎϡᦲ²¼¸þ¤¤ÎÎÏ
¡èQC¡á¡Ü45 kN
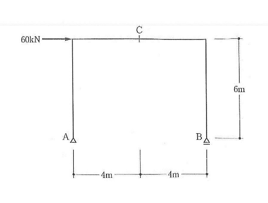
¡Ú£±¡ÛÈ¿ÎϤòµá¤á¤ë¡£
»ÙÅÀA¤ËRA¡Ê¾å¸þ¤¡Ë¡¢HA¡Êº¸¸þ¤¡Ë¡¢»ÙÅÀB¤ËRB¡Ê¾å¸þ¤¡Ë¤ò²¾Äꤷ¤Æ¡¢¤Ä¤ê¤¢¤¤ÊýÄø¼°¤è¤ê¡¢
¡Êüñ¡Ë¿åÊ¿Êý¸þ¤Î¤Ä¤ê¤¢¤¤
¦²±¦¸þ¤¤ÎÎϡᦲº¸¸þ¤¤ÎÎÏ
¡èHA¡á60kN
¡Êüò¡Ë±ôľÊý¸þ¤Î¤Ä¤ê¤¢¤¤
¦²¾å¸þ¤¤ÎÎϡᦲ²¼¸þ¤¤ÎÎÏ
¡èRA¡ÜRB¡á0
¡Êüó¡Ë¥â¡¼¥á¥ó¥È¤Î¤Ä¤ê¤¢¤¤
¦²±¦²ó¤ê¤Î¥â¡¼¥á¥ó¥È¡á¦²º¸²ó¤ê
»ÙÅÀB¤òÃæ¿´¤Ë¤·¤Æ¡¢
RA¡ß8¡Ü60¡ß6¡á0
¡èRA¡á-45kN
¡Êüò¡Ë¤è¤ê¡¢RB¡á¡Ü45 kN
¡Ú£²¡Û±þÎϤòµá¤á¤ë¡£
£ÃÅÀ¤ÇÀÚÃǤ·±¦Â¦¤ò¹Í¤¨¤ë¡£
¤³¤³¤ÇÀÚÃÇÌ̤ˤϡ¢£³¤Ä¤Î±þÎÏNC¡¢QC¡Ê²¼¸þ¤¡Ë¡¢MC¤òµÆþ¤¹¤ë¤³¤È¤Ç¤Ä¤ê¤¢¤¤¤¬¤È¤ì¤ë¡£
¤³¤³¤Ç¡¢±ôľÊý¸þ¤Î¤Ä¤ê¤¢¤¤¤ò¹Í¤¨¤ë¡£
¦²¾å¸þ¤¤ÎÎϡᦲ²¼¸þ¤¤ÎÎÏ
¡èQC¡á¡Ü45 kN
n-35596291 at 9:0 | ¤³¤Îµ»ö¤ÎURL | |











